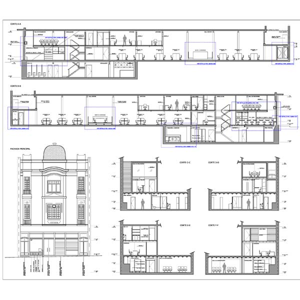
PROYECTOS | COMERCIAL

Reforma de local comercial

Ciudad Vieja, Montevideo

"La construcción de este proyecto destinado a Call Center, ubicado en la planta baja de un edificio existente en la Ciudad Vieja, represento un desafío ya que fue necesario de construir un entrepiso con estructura metálica que pudiese adecuarse al sistema estructural existente. A esto se le suma las exigencias funcionales y de instalaciones dadas en este tipo de programa.


El programa se distribuye en tres niveles: Un subsuelo destinado a las áreas de servicio para los funcionarios; la planta baja destinada a atención al público y call center; y el entrepiso se destina a las gerencias, sala de reuniones y oficinas operativas. Además fue necesario intervenir en la envolvente de la edificación, restaurando por completo la fachada e impermeabilizando la azotea principal del edificio."